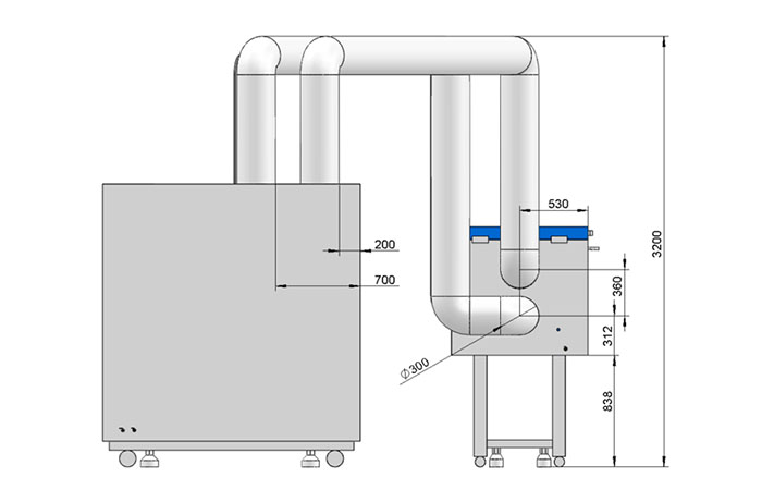
เมื่อวันที่28มิถุนายนพ.ศ. 2023ลูกค้าได้ส่งคำถามไปที่รุ่นเพื่อทดสอบอุณหภูมิของมอเตอร์ รายละเอียดเอกสารของลูกค้าที่มาพร้อมกับสภาพที่แท้จริงของมอเตอร์การเชื่อมต่อระหว่างมอเตอร์และห้องทดสอบอุณหภูมิและระบุอย่างชัดเจนว่าห้องทำงานและตัวควบคุมต้องแยกออกจากกันและทั้งสองเชื่อมต่อกันด้วยท่อ

ในเวลาเดียวกันมอเตอร์ควรได้รับการแก้ไขในห้องทำงานด้านซ้ายและด้านขวาของห้องทำงานควรเชื่อมต่อกับเพลาหมุนภายนอกของลูกค้า, เพลาหมุนทั่วห้องทำงานและเชื่อมต่อกับมอเตอร์และห้องทำงานจะต้องเปิดตามภาพวาดของลูกค้า

ตั้งแต่นั้นมาทีมปฏิบัติการยังคงสื่อสารกับลูกค้าเกี่ยวกับการออกแบบหลังจากหลายเดือนของการทำงานหนักและการขัดอย่างระมัดระวัง สุดท้ายวันที่30พฤศจิกายน2023ลูกค้าได้สั่งซื้อ ในเดือนกุมภาพันธ์2024ลูกค้าได้รับห้องทดสอบอุณหภูมิที่กำหนดเองเรียบร้อยแล้ว
แอลได้รับการมุ่งเน้นความต้องการของลูกค้าเสมอด้วยเทคโนโลยีระดับมืออาชีพและการสื่อสารและการทำงานร่วมกันที่มีประสิทธิภาพเพื่อให้ลูกค้าได้รับโซลูชันที่กำหนดเองคุณภาพสูงได้รับการยอมรับและความไว้วางใจจากลูกค้า ในอนาคต Li จะยังคงรักษาทัศนคติของความเป็นเลิศเพื่อให้ลูกค้าได้รับผลิตภัณฑ์และบริการที่มีคุณภาพมากขึ้น
English
русский
français
العربية
Deutsch
Español
한국어
italiano
tiếng việt
ไทย
Indonesia