UL 50E เป็นมาตรฐานการรับรอง UL สำหรับการพิจารณาด้านสิ่งแวดล้อมของเปลือกอุปกรณ์ไฟฟ้า มาตรฐานครอบคลุมข้อกำหนดด้านโครงสร้างและประสิทธิภาพด้านสิ่งแวดล้อมเพิ่มเติมของเปลือกหุ้มสำหรับอุปกรณ์ไฟฟ้าที่มีข้อควรพิจารณาด้านสิ่งแวดล้อม มาตรฐานนี้ใช้ได้กับตลาดสหรัฐอเมริกาเม็กซิโกและแคนาดา
มาตรฐาน UL 50E ใช้กับเปลือกของอุปกรณ์ไฟฟ้าที่ติดตั้งและใช้ในสถานที่ที่ไม่เป็นอันตรายตามรหัสไฟฟ้าของแคนาดา Part I CSA C22.1และรหัสไฟฟ้าแห่งชาติ NFPA 70 กฎระเบียบของ NOM-001-SEDE ฝักบัว UL 50E ไฟฟ้าเม็กซิกันมีดังนี้:
1) เปลือกสำหรับสถานที่ในร่มประเภท1, 2, 5, 12, 12K และ13;
2) เปลือกสำหรับสถานที่ในร่มหรือกลางแจ้งประเภท3, 3R, 3S, 4, 4X, 6และ6P.
50E UL ครอบคลุมข้อกำหนดด้านสิ่งแวดล้อมและประสิทธิภาพเพิ่มเติมของตู้ ข้อกำหนดทั่วไปสำหรับเปลือกมีอยู่ในมาตรฐาน CSA C22.2หมายเลข94.1, UL 50และ NMX-J-235/1-ANCE หรือร่วมกับมาตรฐานนี้สำหรับผลิตภัณฑ์ end-use.

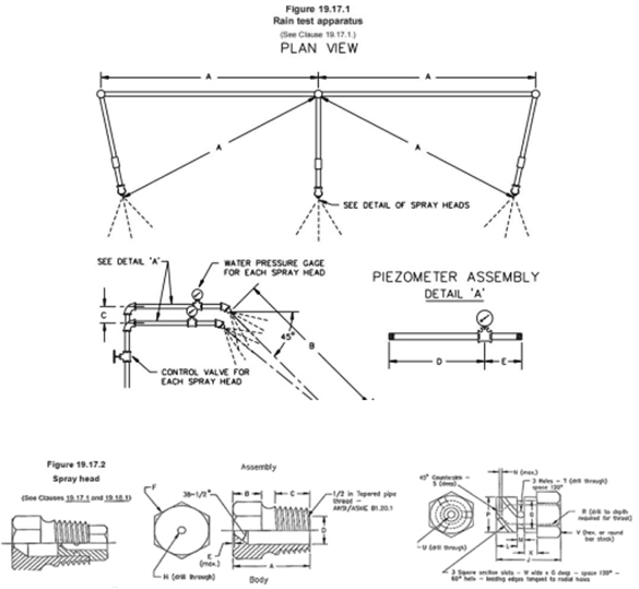
การทดสอบ50E UL รวมถึงการทดสอบต่อไปนี้: การทดสอบหยด, การทดสอบฝน, การทดสอบฝุ่น, การทดสอบไอซิ่งภายนอก, การทดสอบท่อ, การป้องกันการกัดกร่อนในร่ม, การป้องกันการกัดกร่อนกลางแจ้ง, การทดสอบการแช่, การทดสอบความดัน, การทดสอบการยกเว้นน้ำมัน, การทดสอบเครื่องซักผ้า, การทดสอบการเข้าก้าน, การทดสอบการวางแนว, การทดสอบการสัมผัสน้ำและการแช่ บทความนี้กล่าวถึงการทดสอบการเปิดรับน้ำและการแช่ในมาตรฐาน UL 50E เท่านั้นขอแนะนำ UL 50E Shower
หน้าที่หลักของฝักบัว UL 50Eคือการทดสอบคุณสมบัติทางกายภาพและอื่นๆที่เกี่ยวข้องของผลิตภัณฑ์อิเล็กทรอนิกส์ไฟฟ้าโคมไฟตู้ไฟฟ้าอุปกรณ์ไฟฟ้าและผลิตภัณฑ์อื่นๆภายใต้สภาพอากาศฝนตกจำลอง หลังจากการทดสอบผ่านการตรวจสอบเพื่อตรวจสอบว่าประสิทธิภาพของผลิตภัณฑ์ตรงตามข้อกำหนดหรือไม่เพื่ออำนวยความสะดวกในการออกแบบการปรับปรุงการตรวจสอบและการตรวจสอบผลิตภัณฑ์จากโรงงาน

ฝักบัว50E UL ส่วนใหญ่จำลองสภาวะต่างๆของปริมาณน้ำฝนตามธรรมชาติรวมถึงขนาดความเร็วปริมาณน้ำฝนมุมปริมาณน้ำฝนฯลฯเพื่อฉีดพ่นผลิตภัณฑ์ที่ทดสอบ
ฝักบัว50E UL มักประกอบด้วยสิ่งต่อไปนี้:
1.ระบบจ่ายน้ำ: รับผิดชอบในการจัดหาแหล่งน้ำที่สะอาดและเสถียรและควบคุมแรงดันน้ำและความเร็วการไหลของน้ำผ่านฝักบัวควบคุมแรงดัน UL 50E
2.ระบบสเปรย์น้ำ: ประกอบด้วยหัวสปริงเกลอร์ที่ออกแบบมาอย่างพิถีพิถันเพื่อให้แน่ใจว่าการกระจายและลักษณะของเม็ดฝนเป็นไปตามข้อกำหนดมาตรฐาน
3.ระบบควบคุม: ใช้เพื่อตั้งค่าและควบคุมพารามิเตอร์ของการทดสอบฝนเช่นเวลาฝนฝนฯลฯและการตรวจสอบและบันทึกข้อมูลการทดสอบแบบเรียลไทม์

ในที่ทำงานน้ำจะถูกส่งผ่านระบบจ่ายน้ำไปยังหัวฉีดแล้วฉีดพ่นด้วยวิธีที่เฉพาะเจาะจงในรูปแบบปริมาณน้ำฝนจำลอง ผลิตภัณฑ์ที่ผ่านการทดสอบถูกวางไว้บนฝักบัว50E UL แบบถาวรในห้องฝนตกและฉีดพ่นด้วยน้ำฝน โดยการควบคุมพารามิเตอร์ที่แตกต่างกันความเข้มที่แตกต่างกันและประเภทของปริมาณน้ำฝนสามารถจำลอง
1.จำนวนหัวฉีดและมุมฉีดมุมฉีดคือ45 °
2.แรงดันสเปรย์น้ำโดยทั่วไป34.5Kpa หรือปรับได้เพื่อตอบสนองความต้องการในการทดสอบที่แตกต่างกัน
3.ความสูงของทางแยกคอลัมน์น้ำหัวฉีดสามารถปรับได้ช่วงอาจอยู่ระหว่าง300มม. ถึง1200มม. หรือ1000มม. ถึง2000มม.
4.เวลาทดสอบสามารถปรับได้และสามารถตั้งค่าได้ตั้งแต่0ถึง99999.9นาที
5.วัสดุสนับสนุนอาจเกิดขึ้นวัสดุอลูมิเนียมหรือโปรไฟล์อลูมิเนียมอุตสาหกรรมและฐานจะติดตั้งล้อเบรคเข็มขัดสากล
6.โครงสร้างและฟังก์ชัน: ฝักบัว50E UL อาจรวมถึงส่วนประกอบต่างๆเช่นหัวสปริงเกลอร์ส่วนรองรับเกจวัดแรงดันฯลฯการออกแบบระยะห่างและโครงสร้างของหัวสปริงเกลอร์ต้องเป็นไปตามข้อกำหนดกราฟิกมาตรฐาน UL เฉพาะ
| โมเดลโมเดลจำลอง | R-UL020 | |
ขนาดโดยรวม (มม.) | 800*1500*3800มม. | |
ช่วงการปรับความสูงของอุปกรณ์สเปรย์ | 1000-3600มม. (ปรับได้) | |
ตัววัดพารามิเตอร์ | จำนวนหัวสเปรย์ | หัวสเปรย์3หัว |
ระยะห่างหัวฉีด | 710มม. | |
เส้นผ่าศูนย์กลางรูฉีดพ่น | Φ5mm | |
แรงดันน้ำน้ำ | 34.5Kpa | |
ขนาดแพลตฟอร์มตัวอย่าง | ||
โหลดโหลดแพลตฟอร์มตัวอย่าง | 100กิโลกรัม | |
| ||
| ||
ลิเธียมฝักบัว UL 50Eเป็นเลิศในพารามิเตอร์ทางเทคนิคข้างต้น:
A. ใช้กระบวนการผลิตหัวฉีดขั้นสูงเพื่อให้แน่ใจว่าการกระจายน้ำฝนมีความสม่ำเสมอสูงกว่ามาตรฐานอุตสาหกรรม
B. ที่ไม่ซ้ำกันความดันปรับระบบไม่เพียงแต่อย่างถูกต้องรักษาชุดความดัน, แต่ยังมีอัตโนมัติชดเชยฟังก์ชั่นความดันความผันผวนเพื่อให้แน่ใจว่าการทดสอบเสถียรภาพ;
C. การปรับความสูงของหัวฉีดใช้การควบคุมด้วยไฟฟ้าการทำงานที่สะดวกและความแม่นยำสูง
D. การควบคุมเวลาทดสอบมีความถูกต้องถึง0.1นาทีซึ่งให้การรับประกันที่แข็งแกร่งสำหรับการทดสอบระดับการวิจัยทางวิทยาศาสตร์;
E. โครงสร้างการสนับสนุนได้รับความเข้มแข็งเพื่อให้มั่นใจถึงความมั่นคงและลดน้ำหนักโดยรวมของอุปกรณ์ซึ่งสะดวกสำหรับการขนส่งและการติดตั้ง
F. ระบบควบคุมอัจฉริยะที่ไม่ซ้ำใครสามารถรับรู้การตรวจสอบระยะไกลและการบันทึกข้อมูลซึ่งช่วยปรับปรุงประสิทธิภาพการทดสอบและความสะดวกในการจัดการอย่างมาก
1.ผลิตภัณฑ์อิเล็กทรอนิกส์และไฟฟ้า
รวมถึงโทรศัพท์มือถือคอมพิวเตอร์แท็บเล็ตเครื่องชาร์จตัวเรือนไฟฟ้าฯลฯเพื่อให้แน่ใจว่าผลิตภัณฑ์เหล่านี้ยังคงทำงานได้ตามปกติในสภาพแวดล้อมที่ชื้นเพื่อป้องกันการลัดวงจรความล้มเหลวและปัญหาอื่นๆที่เกิดจากน้ำ
2.อะไหล่รถยนต์
ไฟหน้ารถ, ไฟท้าย, แดชบอร์ด, เซ็นเซอร์, หน่วยควบคุมอิเล็กทรอนิกส์และส่วนประกอบอื่นๆจำเป็นต้องมีประสิทธิภาพการกันน้ำที่ดีเพื่อปรับให้เข้ากับสภาพอากาศต่างๆ
3.อุปกรณ์กลางแจ้ง
ไฟถนนกล้องวงจรปิดอุปกรณ์สื่อสารแผงเซลล์แสงอาทิตย์และอุปกรณ์กลางแจ้งอื่นๆมักสัมผัสกับสภาพแวดล้อมที่ฝนตกผ่านการทดสอบฝนสามารถตรวจสอบความสามารถในการป้องกันได้
4.การบินและอวกาศ
ชิ้นส่วนเครื่องบิน, เรือนยานอวกาศ, ฯลฯ, ต้องมีความต้านทานน้ำสูงมาก, และ UL 50E อาบน้ำช่วยให้มั่นใจว่าพวกเขารักษาการดำเนินงานปกติในสภาพอากาศที่รุนแรง.
ดูที่นี่ผมเชื่อว่าคุณมีความเข้าใจบางอย่างเกี่ยวกับฝักบัว UL 50E หากคุณกังวลเกี่ยวกับการทดสอบประสิทธิภาพการกันน้ำของผลิตภัณฑ์ฝักบัว50E พารามิเตอร์ทางเทคนิคที่แม่นยำประสิทธิภาพที่เชื่อถือได้และชื่อเสียงของแบรนด์ที่ยอดเยี่ยมสามารถให้การรับประกันที่มั่นคงสำหรับคุณภาพของผลิตภัณฑ์ของคุณ ติดต่อเราวันนี้Inquiry@libtestchamber.comสำหรับรายละเอียดสินค้าเพิ่มเติมและข้อเสนอพิเศษ!
ก่อนหน้าก่อนหน้า
English
русский
français
العربية
Deutsch
Español
한국어
italiano
tiếng việt
ไทย
Indonesia
